شما می‌توانید این تاون‌هاوس‌ها را تنها با 5 درصد پیش‌خرید کنید
با عرض سلام و آرزوی اوقاتی خوش برای شما، در این هفته قصد دارم در مورد مناطق خوش‌آینده در مرکز شهر داون‌تاون با شما صحبت کنم و در دنباله پروژه‌ای را بررسی کنم که از این نواحی دان‌تاون در حال ساخت و تکمیل شده می‌باشد.
تورنتوی بزرگ که به آن Great Toronto Area می‌گویند. منطقه‌ای است به ‌وسعت 7 هزار کیلومتر مربع و جمعیت حدود 6 میلیون نفر.
لطفا روی عکس تبلیغات زیر کلیک کنید؛ ادامه مطلب پس از این تبلیغات
Vincent Ho, M.P. Richmond hill, Canada

ناحیه تورنتوی بزرگ یا همان GTA از سمت شرق به شهر اوشاوا و در سمت غرب به شهر اوکویل و در شمال به نیومارکت و از جنوب به شهر تورنتو و دریاچه انتاریو محدود می‌شود. از بین تمام این نواحی، شهر تورنتو و مرکز شهر تورنتو، قبل از سایر مناطق ساخته شده‌اند. ساختمان‌ها و محلاتی در شهر تورنتو وجود دارند که قدمتی بیشتر از یکصد سال دارند، به همین دلیل نو کردن این مناطق و ساختن ساختمان‌های جدید از اولویت‌های اصلی شهرداری تورنتو و دولت اونتاریو به حساب می‌آید.
حال ممکن است این سوال پیش آید که این نو کردن و به روز رساندن خانه‌ها چه اهمیتی برای شما به عنوان خریدار خانه می‌تواند داشته باشد؟
ادامه مطلب پس از این تبلیغات

Best Persian Iranian Directory

آذربایجان همدردی


جواب آنست که پیش‌خرید خانه و آپارتمان در نواحی و مناطقی که قرار است نونوار و جدید شوند، بسیار سودآور و همراه با افزایش قیمت خواهد بود.
بسیاری از مراکز شهر تورنتو در حال حاضر دارای ساختمان‌های قدیمی است ولی در ظرف چند سال آینده، کل ساختمان‌های منطقه خراب شده و به جای آنها ساختمان‌های جدید ساخته می‌شود. تجربه نشان داده که بالاتر رفتن قیمت این مناطق، به مراتب بیشتر از نواحی دیگر است. به عبارت دیگر پیش‌خرید در این نواحی سودآوری بالاتری برای خریداران به همراه داشته است.
لطفا روی عکس بنر تبلیغاتی کلیک کنید تا برایتان شماره بگیرد
بهترین طراحی و سه بعدی برای بیزینس شما

یکی از مناطقی که خود من در آن ناحیه در سال‌های 2014-2015 فعالیت داشتم، ناحیه شرق خیابان پارلمان و خیابان دانداس شرقی بود. در سال 2014 یک شرکت بزرگ خانه‌سازی شروع به تخریب ساختمان‌های قدیمی در خیابان دانداس شرقی کرد و از من برای همکاری دعوت کرد. قرار بود تمام ساختمان‌های قدیمی این ناحیه یکی پس از دیگری خراب شده و به جای آنها، ساختمان‌های جدید و مدرن ساخته شود. در آن زمان شرکت سازنده برای آپارتمان یکخوابه حدود 350 هزار دلار می‌خواست و به هر خریدار یک پارکینگ مجانی می‌داد. امروز پس از گذشت 5 سال، کل ناحیه خیابان دانداس ساخته شده و به منطقه نو و زیبایی تبدیل شده است. آپارتمان یک خوابه‌، امروز بیشتر از 600 هزار دلار قیمت دارد و قیمت این ناحیه (Regent Park) از همه جای تورنتو، رشد بالاتری داشته است.
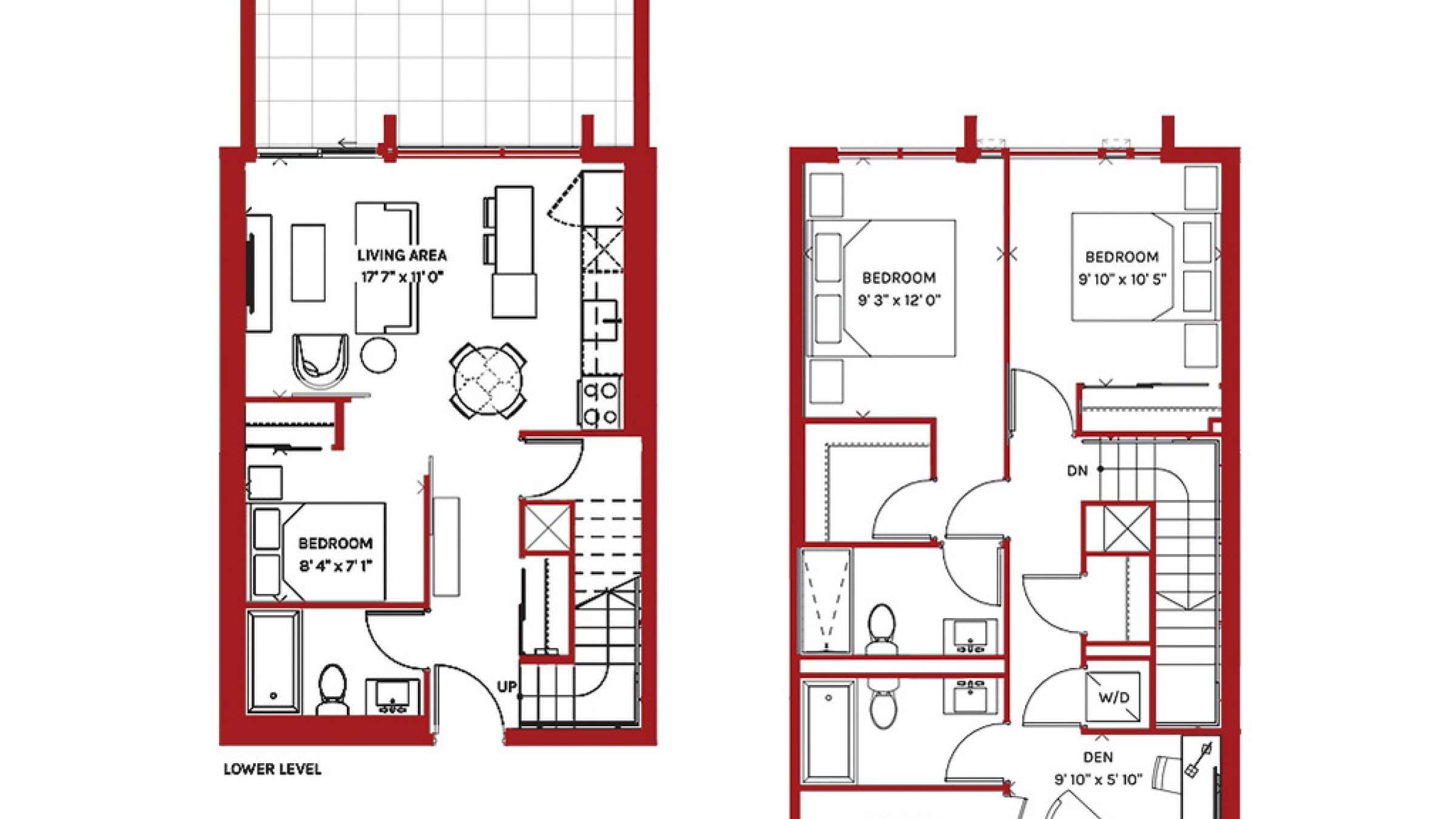
به دنبال این مقدمه، قصد دارم ‌در مورد پروژه این هفته با شما صحبت کنم. این پروژه که در خیابان Front شرقی ساخته خواهد شد، جزو نواحی است که پتانسیل بسیار خوبی دارد و شهرداری بودجه زیادی را برای آن کنار گذاشته است. این منطقه‌ در خیابان  Frontبه دلیل نزدیکی به بزرگراه "دان‌ولی" ‌در شرق و بزرگراه "گاردینر" در جنوب، بهترین دسترسی را به همه جای مرکز شهر تورنتو به شما می‌دهد. از این منطقه تا بازار St.Lawrence دو دقیقه، تا خیابان یانگ حدود 7 دقیقه و تا " سی‌ان‌تاور" حدود 10 دقیقه فاصله است. یکی از شرکت‌های سازنده اخیر شروع به فروش تاون‌هاوس‌هایی در خیابان‌ Front کرده است. این تاون‌هاوس‌ها سه خوابه ‌هستند و زیربنای آنها از حدود 1220 فوت مربع (حدود 120 متر) شروع می‌شود و هر کدام از این تاون‌هاوس‌ها حدود 20 تا 30 متر مربع فضای بیرونی دارند.
لطفا روی عکس تبلیغاتی کلیک کنید تا برای شما شماره بگیرد؛ ادامه مطلب پس از این تبلیغات
insurance بیمه شهرام بینش

شرکت سازنده اخیرا پروموشن خاصی را برای خریداران در نظر گرفته است. شما می‌توانید این تاون‌هاوس‌ها را تنها با 5 درصد پیش‌خرید کنید و دو سال بعد آنها را تحویل بگیرید. به عبارت دیگر شما تا زمان انتقال سند در دو سال بعد فقط معادل 5 درصد قیمت خرید را به سازنده می‌دهید. این پروموشن به شما امکان‌ می‌دهد تا با زمان کافی، خود را برای انتقال نهایی در اوایل سال 2022 آماده کنید. شما فرصت خواهید داشت تا سرمایه خود را از ایران جابه‌جا کنید و در هنگام انتقال سند، مورگیج خود را تهیه کنید.
ادامه مطلب پس از این تبلیغات
Website Design
Best Persian Iranian Directory

این پروژه به کسانی که از جاهای کوچک و ساختمان‌های تنگ در مرکز شهر تورنتو گریزان هستند امکان می‌دهد تا صاحب یک تاون‌هاوس بزرگ در مرکز شهر تورنتو شوند.‌
لطفا برای کسب اطلاعات بیشتر با من تماس حاصل فرمایید.
هفته شما خوش
لطفا روی عکس تبلیغات زیر کلیک کنید؛ ادامه مطلب پس از این تبلیغات
اتوماسیون و هوشمندسازی خانه و دفتر کار

اگر شما همکاری گرامی ما هستی، مرسی که این مطلب را خواندی، اما کپی نکن و با تغییر به نام خودت نزن، خودت زحمت بکش!
پروتکل علمی - پزشکی جهانی برای مقابله کلیه ویروس‌هایی مانند کرونا که انتقالشان از طریق بسته هوایی است:
۱- ماسک ان-۹۵ بزنید، کرونا از ماسک‌های معمولی رد می‌شود. ۲- فیلتر هوای قوی هپا بگذارید. ۳- تا جایی که می‌توانید از مردم حذر کنید. ۴- تغذیه خوب و سالم داشته باشید، مقادیر زیاد ویتامین C و D مصرف کنید. ۵- بسیار ورزش کنید. ۶- اگر توانستید حتما واکسن بزنید.
Date: Wednesday, February 19, 2020 - 19:00

درباره نویسنده/هنرمند

دیگر مطالب مرتبط

تعمیرات هرگونه وسایل برقی - آلن

Share this with: ارسال این مطلب به