قیمتهای این ساختمان با توجه به لوکیشن عالی آن بسیار مناسب است
با سلام و آرزوی اوقاتی خوش برای شما، در هفته قبل در مورد پیشخرید آپارتمان در خیابان شپرد با شرایط واقعا ویژه صحبت کردیم و گفتیم که شرکت سازنده برای مدت کوتاهی به خریداران بین 30 تا 50 هزار دلار به صورت پارکینگ مجانی تخفیف میدهد. این آپارتمانها که در فاصله نزدیکی از ایستگاه قرار دارند، در ظرف یک سال و نیم تا دو سال آینده ساخته و تحویل خواهند شد و پیشبینی میشود با توجه به قیمت مناسب آنها، رشد خیلی خوبی را تا زمان تکمیل به خریداران بدهد.
اینجانب در طول سالها، بسیاری از این پروموشنها را دیدهام که شرکت سازنده آنها را به خریداران داده ولی در ظرف مدت کوتاهی، پروموشن را کنسل کرده است. به همین جهت به شما پیشنهاد میکنم جهت تخفیف ویژه و استفاده از پارکینگ مجانی هر چه زودتر با من تماس بگیرید.
در این هفته قصد دارم به یکی از سوالاتی که چندین بار از من شده پاسخ دهم و آن در مورد بیمه کیفیت خانه نو TARION میباشد. شرکت TARION که وابسته به دولت اونتاریو میباشد، خانههای نو که پیشخرید میشوند را بیمه میکند.
با این بیمه در صورتی که شما آپارتمان خود را از سازنده تحویل گرفتید ولی خانه جدید شما دارای نقص یا مشکلی بود، شرکت سازنده مطابق قانون موظف به تعمیر و عیب مورد نظر است و برای درست کردن این اشکال هزینهای از شما نمیگیرد. کلیه شرکتهای سازندهای که در این مقالهها به شما معرفی میشوند، عضو TARION هستند و در نتیجه شما پس از پیشخرید اطمینان دارید که هرگونه نقصی به موقع و توسط شرکت سازنده برطرف میشود.
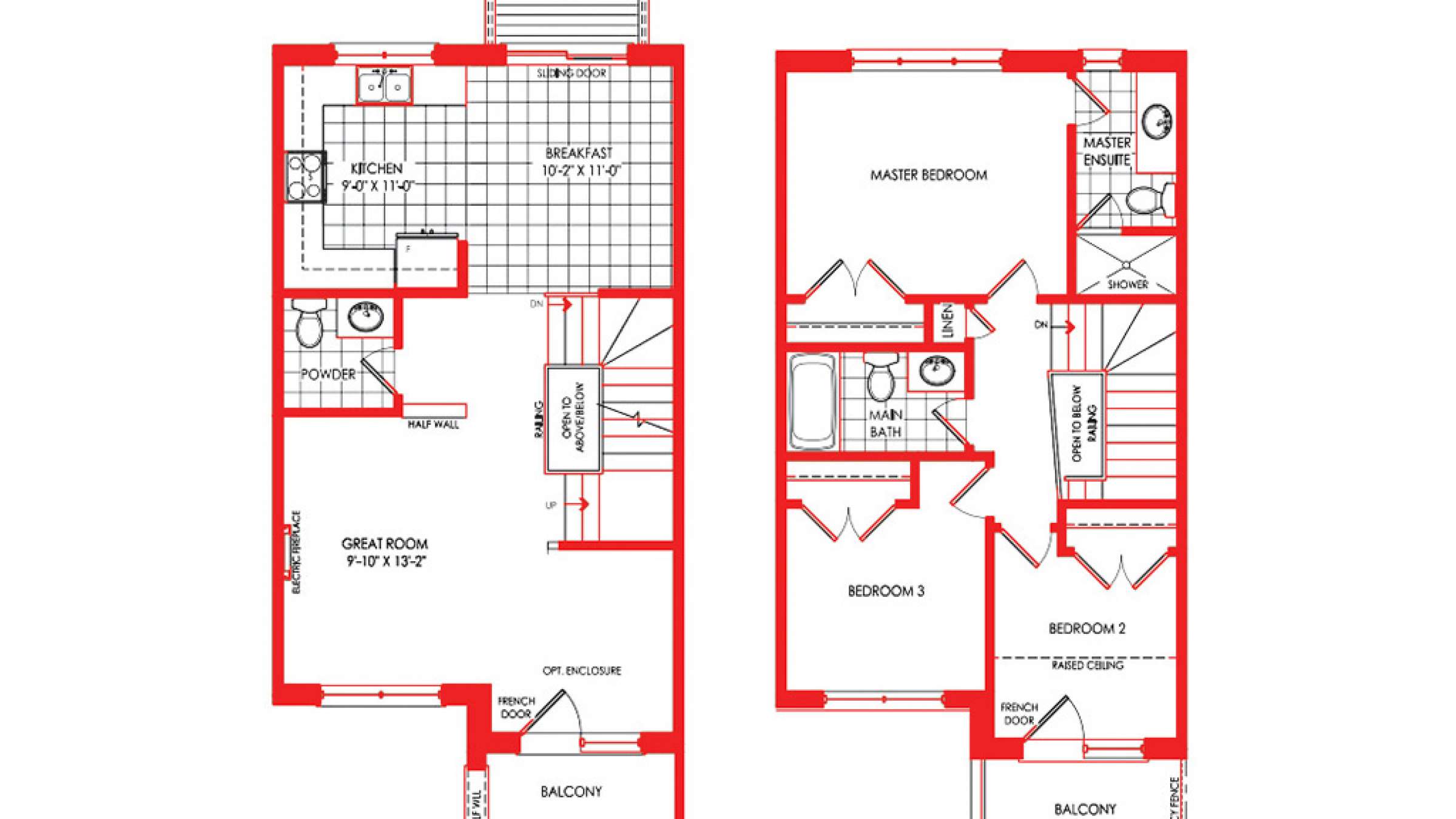
پروژه اول این هفته اختصاص به پیشفروش تاونهاوس در نزدیکی خیابان یانگ و در شهر آرورا اختصاص دارد. این تاونهاوسها از نوع Freehold میباشد و شما به عنوان خریدار، مالک کامل زمین تاونهاوس هستید. شرکت سازنده این تاونهاوسها را در فاصله 50 متری از خیابان اصلی یعنی یانگ خواهد ساخت و برای مدت کوتاهی شما با حداقل پول پیش میتوانید یک خانه بسیار زیبا و Freehold را در شهر آرورا پیشخرید کنید.
همانطور که در نقشه این تاونهاوسها مشخص است، این خانهها بسیار خوب طراحی شدهاند و دارای دو پارکینگ، یک دک زیبا در طبقه همکف، آشپزخانه مدرن و محل صبحانه میباشد.
شرکت سازنده شرایط پیشخرید فوقالعاده و واقعا بینظیر را برای من فرستاده است که حقیقتا در هیچ جایی دیده نمیشود. شما برای پیشخرید هر یک از این خانههای لوکس، تنها 60 هزار دلار به سازنده میپردازید. این پروموشن به صورت Limited Time و برای مدتی کوتاه ادامه خواهد داشت. شما مبلغ 60 هزار دلار را به صورت کاملا قسطی و در 12 قسط به سازنده میپردازید. در نتیجه پس از یکسال، شما کل مبلغ دیپازیت را پرداخت کردهاید.
این پروژه به کسانی که میخواهند با حداقل دیپازیت صاحب خانه مستقل Freehold در خیابان یانگ شوند، امکان خوبی را میدهد.
ساختمان دومی که این هفته راجع به آن صحبت خواهم کرد در دو قدمی مال معروف Promenade در نزدیکی خیابان استیلز و بترست ساخته خواهد شد.
از محل این پروژه تا مال 2 دقیقه راه است. شرکت سازنده به خریداران پروموشن خاصی را میدهد که قسطهای 2.5% و پوشش کامل خانه با "هاردوود" است.
قیمتهای این ساختمان با توجه به لوکیشن عالی آن بسیار مناسب است و واحد یکخوابه تنها 520 هزار دلار و دو خوابه تنها 650 هزار دلار قیمتگذاری شدهاند.
این ساختمان دو سال دیگر تکمیل خواهد شد و واحدهای آن از هماکنون با قیمت فوق آماده فروش است.
شما میتوانید برای کسب اطلاعات بیشتر به صفحه فیسبوک ما مراجعه کنید:
WWW.Facebook.com/BestNewHouses.
خوشحال خواهم شد تا با شما در مورد بهترین پروموشنها و تخفیفها صحبت کنم.
هفته شما خوش
اینجانب در طول سالها، بسیاری از این پروموشنها را دیدهام که شرکت سازنده آنها را به خریداران داده ولی در ظرف مدت کوتاهی، پروموشن را کنسل کرده است. به همین جهت به شما پیشنهاد میکنم جهت تخفیف ویژه و استفاده از پارکینگ مجانی هر چه زودتر با من تماس بگیرید.
در این هفته قصد دارم به یکی از سوالاتی که چندین بار از من شده پاسخ دهم و آن در مورد بیمه کیفیت خانه نو TARION میباشد. شرکت TARION که وابسته به دولت اونتاریو میباشد، خانههای نو که پیشخرید میشوند را بیمه میکند.
با این بیمه در صورتی که شما آپارتمان خود را از سازنده تحویل گرفتید ولی خانه جدید شما دارای نقص یا مشکلی بود، شرکت سازنده مطابق قانون موظف به تعمیر و عیب مورد نظر است و برای درست کردن این اشکال هزینهای از شما نمیگیرد. کلیه شرکتهای سازندهای که در این مقالهها به شما معرفی میشوند، عضو TARION هستند و در نتیجه شما پس از پیشخرید اطمینان دارید که هرگونه نقصی به موقع و توسط شرکت سازنده برطرف میشود.
پروژه اول این هفته اختصاص به پیشفروش تاونهاوس در نزدیکی خیابان یانگ و در شهر آرورا اختصاص دارد. این تاونهاوسها از نوع Freehold میباشد و شما به عنوان خریدار، مالک کامل زمین تاونهاوس هستید. شرکت سازنده این تاونهاوسها را در فاصله 50 متری از خیابان اصلی یعنی یانگ خواهد ساخت و برای مدت کوتاهی شما با حداقل پول پیش میتوانید یک خانه بسیار زیبا و Freehold را در شهر آرورا پیشخرید کنید.
همانطور که در نقشه این تاونهاوسها مشخص است، این خانهها بسیار خوب طراحی شدهاند و دارای دو پارکینگ، یک دک زیبا در طبقه همکف، آشپزخانه مدرن و محل صبحانه میباشد.
شرکت سازنده شرایط پیشخرید فوقالعاده و واقعا بینظیر را برای من فرستاده است که حقیقتا در هیچ جایی دیده نمیشود. شما برای پیشخرید هر یک از این خانههای لوکس، تنها 60 هزار دلار به سازنده میپردازید. این پروموشن به صورت Limited Time و برای مدتی کوتاه ادامه خواهد داشت. شما مبلغ 60 هزار دلار را به صورت کاملا قسطی و در 12 قسط به سازنده میپردازید. در نتیجه پس از یکسال، شما کل مبلغ دیپازیت را پرداخت کردهاید.
این پروژه به کسانی که میخواهند با حداقل دیپازیت صاحب خانه مستقل Freehold در خیابان یانگ شوند، امکان خوبی را میدهد.
ساختمان دومی که این هفته راجع به آن صحبت خواهم کرد در دو قدمی مال معروف Promenade در نزدیکی خیابان استیلز و بترست ساخته خواهد شد.
از محل این پروژه تا مال 2 دقیقه راه است. شرکت سازنده به خریداران پروموشن خاصی را میدهد که قسطهای 2.5% و پوشش کامل خانه با "هاردوود" است.
قیمتهای این ساختمان با توجه به لوکیشن عالی آن بسیار مناسب است و واحد یکخوابه تنها 520 هزار دلار و دو خوابه تنها 650 هزار دلار قیمتگذاری شدهاند.
این ساختمان دو سال دیگر تکمیل خواهد شد و واحدهای آن از هماکنون با قیمت فوق آماده فروش است.
شما میتوانید برای کسب اطلاعات بیشتر به صفحه فیسبوک ما مراجعه کنید:
WWW.Facebook.com/BestNewHouses.
خوشحال خواهم شد تا با شما در مورد بهترین پروموشنها و تخفیفها صحبت کنم.
هفته شما خوش
اگر شما همکاری گرامی ما هستی، مرسی که این مطلب را خواندی، اما کپی نکن و با تغییر به نام خودت نزن، خودت زحمت بکش!
پروتکل علمی - پزشکی جهانی برای مقابله کلیه ویروسهایی مانند کرونا که انتقالشان از طریق بسته هوایی است:
۱- ماسک ان-۹۵ بزنید، کرونا از ماسکهای معمولی رد میشود. ۲- فیلتر هوای قوی هپا بگذارید. ۳- تا جایی که میتوانید از مردم حذر کنید. ۴- تغذیه خوب و سالم داشته باشید، مقادیر زیاد ویتامین C و D مصرف کنید. ۵- بسیار ورزش کنید. ۶- اگر توانستید حتما واکسن بزنید.
۱- ماسک ان-۹۵ بزنید، کرونا از ماسکهای معمولی رد میشود. ۲- فیلتر هوای قوی هپا بگذارید. ۳- تا جایی که میتوانید از مردم حذر کنید. ۴- تغذیه خوب و سالم داشته باشید، مقادیر زیاد ویتامین C و D مصرف کنید. ۵- بسیار ورزش کنید. ۶- اگر توانستید حتما واکسن بزنید.
Date: Wednesday, February 5, 2020 - 19:00
درباره نویسنده/هنرمند
![]() | Ramin Siroosi رامین سیروسی پزشک از دانشگاه تهران و مشاور املاک در شهر تورنتوست که با ژاله وحدتپناه تیم مشاوره املاک دارد 416-418-8587 | 416-826-9797 ramin.siroosi@gmail.com |
ویراستار اول: آرش مقدم؛ ویراستار نهایی: پر ابراهیمی - ویراستاری موقت: عباس حسنلو
ویراستار اول: آرش مقدم؛ ویراستار نهایی: پر ابراهیمی - ویراستاری موقت: عباس حسنلو



















