در این اکازیون، علاوه بر قیمتگذاری مناسب، شرایط پیشفروش نیز آسان و با اقساط نسبتاً طولانی میباشد
با سلام و آرزوی اوقاتی خوب برای شما، در هفته قبل راجع به پروژهای در غرب خیابان "بلور" نوشتم که در تابستان کار ساختمان آن شروع میشود. در مقاله آن هفته ذکر کردم که برای مدت کوتاهی متقاضیان میتوانند با حداقل پول پیش، یک آپارتمان در نزدیک پارک معروف High Park بخرند. برای مثال پیشخرید یک آپارتمان یکخوابه و دن با زیربنای حدود 700 فوت مربع، تنها به 36 هزار دلار پول پیش احتیاج دارد و شما پول دیگری تا بهار سال 2021 به سازنده نمیپردازید علاوه بر آن یک محل پارکینگ به صورت پروموشن و بدون هزینه اضافی خواهید داشت.
در این هفته قصد دارم به پروژه دیگری بپردازم که در خیابان سنتکلر غربی واقع شده و یکی از مناسبترین قیمتها را در این محدوده دارد. آپارتمان یکخوابه تنها 440 هزار دلار، دو خوابه تنها 520 هزار و 2 خوابه+دن با زیربنای حدود 900 فوت تنها 665 هزار دلار قیمتگذاری شده که یکی از بهترین قیمتها در داخل تورنتو میباشد. توجه داشته باشید که آپارتمان 2 خوابه در این ناحیه حدود 2500 دلار اجاره خواهد رفت که مورگیج را کاملاً پوشش میدهد. علاوه بر قیمتگذاری مناسب، شرایط پیشفروش نیز آسان و با اقساط نسبتاً طولانی میباشد.
مثلاً برای پیشخرید آپارتمان 2 خوابه تنها 25 هزار دلار در ظرف یک ماه و یک 25 هزار دلار دیگر در سه ماه میپردازید و بعد از آن شرکت سازنده تا یکسال از شما پولی نمیگیرد. فاصلهدار بودن قسطها به شما کمک میکند تا در فرصت کافی، اقدام به پس انداز و پرداخت قسطها کنید.
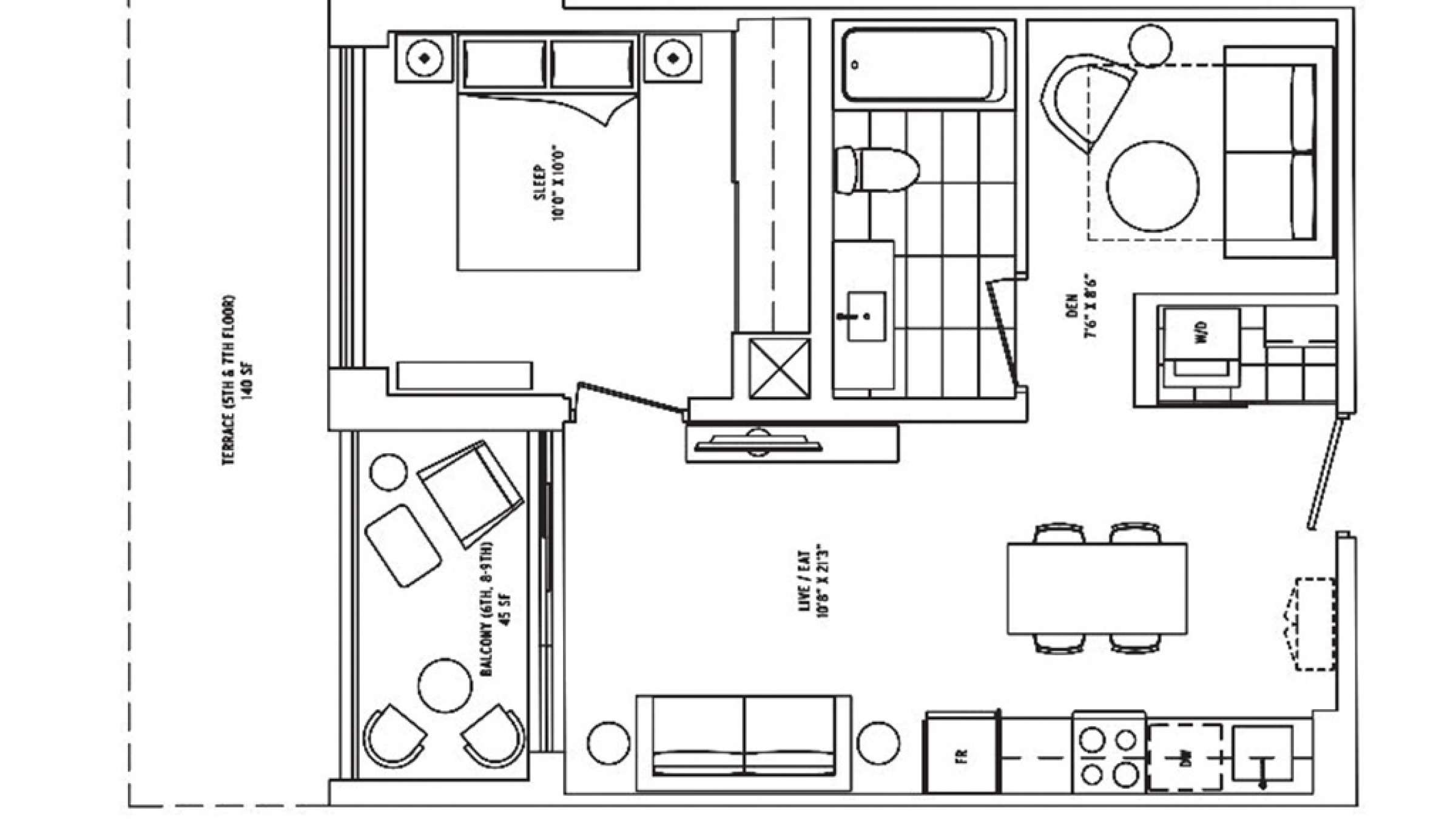
طراحی فضای این کاندوها، یکی دیگر از نکات مثبت آنها به حساب میآید. برای مثال در عکس این مقاله یک آپارتمان یکخوابه + دن نشان داده شده که حدود 570 فوت مربع است و همانطور که مشخص است، دن آن بسیار جادار طراحی شده و یک تخت Double در آن جا میگیرد. بقیه واحدهایش از نقشه چهارگوش و مناسبی برخوردار هستند.
از نظر امکانات رفت و آمد، تراموا Streetcar خیابان سنتکلر در مقابل این ساختمان ایستگاه دارد. علاوه بر آن با تکمیل خط رفت و آمد در خیابان اگلینتون، این ساختمان دسترسی به آن خط نیز خواهد داشت و ساکنین با یک مسافت کوتاه میتوانند از خط LRT اگلینتون استفاده ببرند.
قیمت آپارتمانها در مرکز شهر تورنتو بسیار بالا رفته و الان آپارتمان یکخوابه در محدوده Down town حداقل 550 هزار و دو خوابه حداقل 750 تا 800 هزار دلار قیمت دارند. پروژهای که الان ذکر کردم، قیمتی بسیار مناسبتر دارد و به متقاضیان اجازه میدهد تا با شرایط مناسبی، یک آپارتمان نو را در نزدیکی مرکز شهر پیشخرید نمایند.
همه هفته اطلاعات پروژههای مختلف بدست من میرسد. اجارهنشینی در دراز مدت باعث میشود که شما فرصت خرید را از دست بدهید. آپارتمانهایی که در مرکز شهر 3 سال قبل حدود 350 هزار دلار قیمت داشتند، الان بالای 500 هزار هستند. در حالیکه مستاجرین آنها، هنوز اجارهنشین هستند و مالکین آنها شاهد افزایش چشمگیر ملک خود بودند.
لطفاً برای کسب اطلاعات بیشتر با من تماس بگیرید تا در مورد پروژههای مختلف چه در تورنتو، چه در ریچموندهیل و یا نورتیورک با هم صحبت کنیم.
هفته شما خوش
در این هفته قصد دارم به پروژه دیگری بپردازم که در خیابان سنتکلر غربی واقع شده و یکی از مناسبترین قیمتها را در این محدوده دارد. آپارتمان یکخوابه تنها 440 هزار دلار، دو خوابه تنها 520 هزار و 2 خوابه+دن با زیربنای حدود 900 فوت تنها 665 هزار دلار قیمتگذاری شده که یکی از بهترین قیمتها در داخل تورنتو میباشد. توجه داشته باشید که آپارتمان 2 خوابه در این ناحیه حدود 2500 دلار اجاره خواهد رفت که مورگیج را کاملاً پوشش میدهد. علاوه بر قیمتگذاری مناسب، شرایط پیشفروش نیز آسان و با اقساط نسبتاً طولانی میباشد.
مثلاً برای پیشخرید آپارتمان 2 خوابه تنها 25 هزار دلار در ظرف یک ماه و یک 25 هزار دلار دیگر در سه ماه میپردازید و بعد از آن شرکت سازنده تا یکسال از شما پولی نمیگیرد. فاصلهدار بودن قسطها به شما کمک میکند تا در فرصت کافی، اقدام به پس انداز و پرداخت قسطها کنید.
طراحی فضای این کاندوها، یکی دیگر از نکات مثبت آنها به حساب میآید. برای مثال در عکس این مقاله یک آپارتمان یکخوابه + دن نشان داده شده که حدود 570 فوت مربع است و همانطور که مشخص است، دن آن بسیار جادار طراحی شده و یک تخت Double در آن جا میگیرد. بقیه واحدهایش از نقشه چهارگوش و مناسبی برخوردار هستند.
از نظر امکانات رفت و آمد، تراموا Streetcar خیابان سنتکلر در مقابل این ساختمان ایستگاه دارد. علاوه بر آن با تکمیل خط رفت و آمد در خیابان اگلینتون، این ساختمان دسترسی به آن خط نیز خواهد داشت و ساکنین با یک مسافت کوتاه میتوانند از خط LRT اگلینتون استفاده ببرند.
قیمت آپارتمانها در مرکز شهر تورنتو بسیار بالا رفته و الان آپارتمان یکخوابه در محدوده Down town حداقل 550 هزار و دو خوابه حداقل 750 تا 800 هزار دلار قیمت دارند. پروژهای که الان ذکر کردم، قیمتی بسیار مناسبتر دارد و به متقاضیان اجازه میدهد تا با شرایط مناسبی، یک آپارتمان نو را در نزدیکی مرکز شهر پیشخرید نمایند.
همه هفته اطلاعات پروژههای مختلف بدست من میرسد. اجارهنشینی در دراز مدت باعث میشود که شما فرصت خرید را از دست بدهید. آپارتمانهایی که در مرکز شهر 3 سال قبل حدود 350 هزار دلار قیمت داشتند، الان بالای 500 هزار هستند. در حالیکه مستاجرین آنها، هنوز اجارهنشین هستند و مالکین آنها شاهد افزایش چشمگیر ملک خود بودند.
لطفاً برای کسب اطلاعات بیشتر با من تماس بگیرید تا در مورد پروژههای مختلف چه در تورنتو، چه در ریچموندهیل و یا نورتیورک با هم صحبت کنیم.
هفته شما خوش
اگر شما همکاری گرامی ما هستی، مرسی که این مطلب را خواندی، اما کپی نکن و با تغییر به نام خودت نزن، خودت زحمت بکش!
پروتکل علمی - پزشکی جهانی برای مقابله کلیه ویروسهایی مانند کرونا که انتقالشان از طریق بسته هوایی است:
۱- ماسک ان-۹۵ بزنید، کرونا از ماسکهای معمولی رد میشود. ۲- فیلتر هوای قوی هپا بگذارید. ۳- تا جایی که میتوانید از مردم حذر کنید. ۴- تغذیه خوب و سالم داشته باشید، مقادیر زیاد ویتامین C و D مصرف کنید. ۵- بسیار ورزش کنید. ۶- اگر توانستید حتما واکسن بزنید.
۱- ماسک ان-۹۵ بزنید، کرونا از ماسکهای معمولی رد میشود. ۲- فیلتر هوای قوی هپا بگذارید. ۳- تا جایی که میتوانید از مردم حذر کنید. ۴- تغذیه خوب و سالم داشته باشید، مقادیر زیاد ویتامین C و D مصرف کنید. ۵- بسیار ورزش کنید. ۶- اگر توانستید حتما واکسن بزنید.
Date: Wednesday, April 24, 2019 - 20:00
درباره نویسنده/هنرمند
![]() | Ramin Siroosi رامین سیروسی پزشک از دانشگاه تهران و مشاور املاک در شهر تورنتوست که با ژاله وحدتپناه تیم مشاوره املاک دارد 416-418-8587 | 416-826-9797 ramin.siroosi@gmail.com |
ویراستار اول: آرش مقدم؛ ویراستار نهایی: پر ابراهیمی - ویراستاری موقت: عباس حسنلو
ویراستار اول: آرش مقدم؛ ویراستار نهایی: پر ابراهیمی - ویراستاری موقت: عباس حسنلو




















